Autores: Eduardo Dipre, Miguel Ángel Diaz González, Daniel Gómez Magide, Lucia Martínez, Andrés Perea
Ubicación: Bilbao, Bizkaia, España
Año: 2021 (Concurso –2ndo premio)
Promotor: Instituto Gogora – Gobierno Vasco
Superficie: 650 m²
Comunicar es unir
El reto al que nos enfrentamos al proponer un Nuevo Espacio Expositivo para el Instituto Gogora no es menor. Se nos insta a crear un lugar para la construcción de la memoria, un espacio plural en que todas las personas estamos invitadas a participar. Además, desde la propia Institución nos invitan a acercar a la calle y a la ciudadanía el valor concreto y real de la memoria, promoviendo su potencialidad ética y educativa, y fomentando el diálogo, el debate y la participación social.
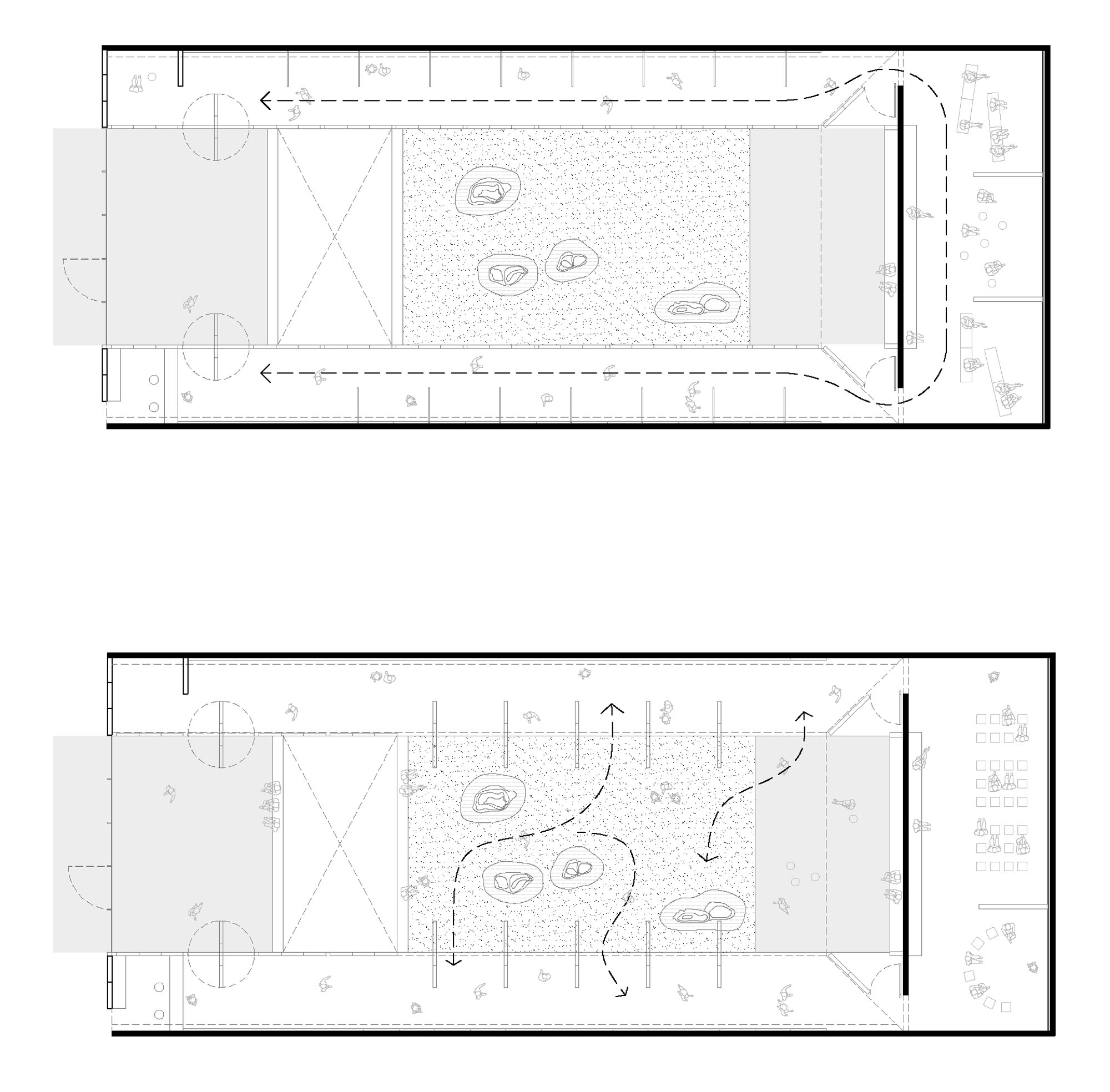
En este sentido, nuestra intención es introducir el espacio público (la ciudad) en el interior del patio de manzana. La continuidad visual y material desde la Calle Marina Díaz de Haro trasladan el inicio del recorrido expositivo al exterior, al mismo tiempo que atrae a quien circula por la calle hacia el interior. De este modo, mediante el atravesamiento de diferentes filtros se va desvelando un vacío central envuelto por pabellones a modo de claustro.
Este vacío central se concibe como un espacio de reflexión y de encuentro. Pensamos en un patio que nos transporte a espacios como el Templo de Ryoan-Ji en Kyoto. Un lugar simbólico, donde la ausencia y la presencia conviven. Allí hay restos de la ciudad omnipresente, pero esta se desvanece para dar lugar al vacío. Un vacío que nos rescate de la alienación de lo cotidiano y nos conecte con nosotros mismos y con lo que somos, y lo que somos es precisamente nuestra historia.
Mientras que el patio es luz, los pabellones son oscuridad. En estos se exhibirán cada pieza que construyó nuestra historia reciente, y de las que no debemos olvidarnos. Sin embargo, no se trata de establecer un orden o conducir al visitante a través de un recorrido. Para este proyecto no se considera al visitante como un mero espectador, sino que se lo considera como un ser activo. Al igual que la historia, una exposición no es un libro que debe ser leído en orden. Toda persona es parte de la historia y debe construir la suya propia. El objetivo es entonces, propiciar un espacio para que cada uno pueda construirla.










